Charakteristika: Pri zatepľovaní obvodových stien môžeme v princípe uvažovať o dvoch možnostiach a to o zateplení z interiéru, ktoré sa z hľadiska tepelnej fyziky neodporúča a zateplenie z exteriéru, ktoré sa najviac používa a aplikuje v praxi. Jednotlivé druhy zateplenia majú nasledujúce výhody resp. nevýhody:
Izolácia na vnútornej strane konštrukcie
Výhody:
- ľahký prístup k danej konštrukcii
- aplikácia tradičných metód povrchových úprav (obklady izolačnými doskami)
- možnosť dodatočne zatepliť iba tie miesta alebo miestnosti, ktoré to nutne potrebujú
- menšia finančná náročnosť než na vonkajšej strane (menej špeciálnych vrstiev)
Nevýhody:
- znižuje schopnosť konštrukcie akumulovať a neskôr uvoľňovať teplo
- pôsobí ako bariéra, ktorá zabraňuje prenikaniu tepla do konštrukcie z vnútra
- pod izolačnou vrstvou sa vytvára kondenzačná zóna, v dôsledku ktorej potom dochádza vlhnutiu
- pri použití parotesných zábran dochádza k nepriedušnosti
- pokles povrchových teplôt v rohoch
- konštrukcia je celkovo neprehriata a v zimnom období značne studená
Priebeh teplôt v konštrukcií zateplenej z interiéru
Izolácia na vonkajšej strane konštrukcie
Výhody:
- konštrukcia je dostatočne zateplená s vylúčením možnosti prehrievania z exteriéru
- rosný bod (teplota) je takto vytlačený von z konštrukcie, a preto nedochádza ku kondenzácii vodných pár
- konštrukcia má možnosť a schopnosť akumulovať teplo
- sú odstránené všetky tepelné mosty
- je vytvorená lepšia tepelná pohoda v interiéri
- ochrana konštrukcie pred poveternostnými vplyvmi
- estetický vzhľad
Nevýhody:
- náročnejšia stavebná akcia spojená s technologickými problémami napr. stavba lešenia, zavádzanie mokrého procesu na stavbu atď.
- zložitejšie vonkajšie úpravy členitosti fasády (rímsy, balkóny, okná atď.)
- nutnosť vytvorenia povrchovej protipoveternostnej vrstvy slúžiacej zároveň ako ochrana proti dažďu
Zateplenie fasády
Obsah
4. Kotvenie hmoždiacich skrutiek
6. Prevedenie finálnej povrchovej úpravy
1. Príprava podkladu
Súdržnosť podkladu
Vhodnými podkladmi sú murované steny, betónové povrchy panelov, pevné a súdržné cementové, vápeno-cementové a polymércementové omietky, pórobetón a pod.
Opravy nesúdržných podkladov sa realizujú s predstihom, aby mohlo dôjsť k dostatočnému vyschnutiu opravovaných plôch (min.14 dní).
Odporúča sa priemerná súdržnosť podkladu najmenej 200 kPa s tým, že najmenšia jednotlivá prípustná hodnota musí byť aspoň 80 kPa.
Prípustná tolerancia odchýlky od roviny je +/- 2 cm na diaľku 1 m tak, aby sa ETICS spojil s podkladom bez pomoci kotviacich prvkov. Táto podmienka platí aj v prípade lepených, a zároveň kotvených systémov. Pri systémoch len lepených je prípustná odchýlka od roviny max. 1cm na diaľku 1m.
- Podklad sa nesmie vyrovnávať vrstvou tepelnej izolácie.
- Opravený podklad sa vždy ošetrí príslušným penetračným náterom.
Správne pripravený podklad pre aplikáciu fasádnej dosky
- Podklad musí byť čistý, suchý, bez mastnôt a nečistôt.
- Podklad musí byť nosný – schopný udržať nalepené fasádne dosky pred kotvením.
- Z hľadiska najvhodnejšieho technologického postupu stavebných prác by sa mala prípadná montáž okien, dverí a práce súvisiace s osadzovaním vonkajších otvorov realizovať ešte pred začiatkom zatepľovania. Pri osadzovaní týchto prvkov je vždy nevyhnutné počítať aj so zatepľovacími prácami. Parapetné dosky treba osadzovaťaž po zateplení tak, že sa dostatočnou hrúbkou zabezpečí tepelná väzba medzi parapetnou časťou otvorovej výplne a samotnou výplňou.
- Nezabudnite si pripraviť klampiarske prvky a kotvy – rozšírené o hrúbku izolácie (hromozvod, satelit, parapety, rímsy,…).
Zásady vhodného podkladu
- Vlhký podklad – najskôr sa musí odstrániť príčina vlhkosti, zatepľuje sa až murivo vyschne.
- Zaprášený, špinavý podklad – je nutné mechanicky očistiť, omiesť, prípadne umyť tlakovanou vodou.
- Zvetraný povrch – je nutné mechanicky očistiť, odsekať, prípadne umyť s použitím vhodnej technológie a následne vyrovnať vhodnou hmotou preukázateľne zabezpečujúcou súdržnosť podkladu.
- Mach, plesne, huby – je nutné mechanicky očistiť – stenu je následne vhodné ošetriť dezinfekčným prípravkom.
- Nutné odstrániť – ostré, vystupujúce časti malty, nesúdržné a odlupujúce sa vrstvy náteru a omietky, zvyšky oddebňovacích prípravkov – otryskovať vodou s pridaním detergentu.
- Savý podklad – sa očistí a napenetruje vhodnou penetráciou, priedušné neaktívne spóry a trhliny sa utesnia pružným tmelom, hladký podklad sa zdrsní pomocou brúsneho papieru, ozubených hrablí a pod.
2. Založenie systému
Osadenie zakladajúcich (soklových) profilov
Zatepľovací systém s použitím kamennej minerálnej vlny sa zakladá minimálne 30 cm nad terénom na tzv. zakladaciu lištu, ktorej šírka a pevnosť musia zodpovedať hrúbke použitého izolačného materiálu. Na izolovanie soklovej časti sa používajú dosky na báze extrudovaného polystyrénu (XPS) pod názvom Plyfoam C-UltraGrip SE alebo LJ.
Osadí sa zakladacia lišta príslušnej šírky (podľa hrúbky izolácie) z ľahkých, alkalicky stálych kovov. Tieto sa kotvia rozpernými kotvami v min. počte 3 ks na 1 bm.
Eventuálne ukončovacie lišty sa osadia pred začiatkom lepenia izolácie. Aplikujú sa tesniace a dilatačné pásky a profily na nadväzujúce časti konštrukcie, pokiaľ sú naprojektované.
Potrebné zaistenie rovnosti čela zakladajúcich líšt sa u nerovných podkladov dosiahne pomocou distančných umelohmotných podložiek.
Vzniknutý priestor medzi zakladajúcou lištou a stenou objektu sa vyplní nízko-rozťažnou PU penou tak, aby po montáži izolácie nevznikli dutiny a zabránilo sa eventuálnemu vzniku „komínového efektu“.
Pri vytváraní vnútorných a vonkajších rohov sa vykoná zastrihnutie lišty tak, aby zvierala potrebný uhol. Tzv. nos na čelnej strane profilu musí prebiehať bez prerušenia po celom vonkajšom obvode zateplenia. Vzájomné napojenie zakladajúcej lišty sa vykoná s medzerou 2 mm s použitím plastových spojiviek.
Chýbajúca zakladacia lišta
Správne založenie zakladacej lišty
3. Lepenie izolácie
Izolačné dosky sa lepia zásadne na väzbu, stenu, s minimálnym presahom 20 cm a vždy smerom od zakladacej lišty hore.
Minerálnovláknité materiály sa musia pred aplikáciou lepiaceho materiálu skontrolovať, či je ich povrch dostatočne suchý a bez mechanického poškodenia.
Pred nanášaním lepidla sa musí povrch izolantu penetrovať tenkou vrstvou lepiacej hmoty (nie je potrebné pre SMARTwall produkty).
Lepidlo sa pri doskách FKD a FKD S nanáša po celom okraji dosky (v tzv. okrajovej húsenici) a v strednej časti dosky na terčíky (tzv. bodovo), pričom musí pokrývať plochu minimálne 40 %. Lepidlo musí byť vždy v mieste fixácie dosky pomocou príchytky do nosnej obvodovej steny.
Pri izolantoch FKL s kolmou orientáciou vlákien sa lepidlo nanáša celoplošne, hrebeňovým hladidlom. Výška hrebeňa, čiže nános lepidla, sa určí podľa nerovnosti podkladu.
Dosky aj lamely FKD, FKD S a FKL sa ukladajú k sebe natesno, aby nevznikala priebežná zvislá škára, ale tak, aby sa zvislé škáry striedali.
Na izoláciu okenných ostení treba použiť na to určené dosky FKD RS, ktoré spĺňajú všetky tepelnoizolačné aj mechanické parametre na dané použitie.
Ukážka správneho nanesenia lepidla na fasádnu dosku
Použitie odrezkov izolačných dosiek je možné len v prípade, že ich šírka je väčšia ako 15 cm. Takéto odrezky je možné použiť len v ploche steny.
Odrezky dosiek menšie ako polovica izolačnej dosky sa nesmú osádzať v rohoch, v kútoch, v podhľadoch, v miestach nadväzujúcich na ostenie, nadpražie a parapety otvorov. V prípade použitia môže dôjsť ku vzniku prasklín na finálnej povrchovej úprave alebo ku vzniku tepelných mostov.
Nedodržanie požiadaviek na celistvosť vrstvy tepelného izolantu je možné zistiť po vykonaní ETICS kontroly stavebnou termografiou.
Termovízia zatepleného a nezatepleného bytového domu

Termovízia zatepleného a nezatepleného bytového domu
Zásady aplikácie izolácie
Prvý rad izolácie usádzanej do zakladajúceho profilu sa tesne pritlačí k prednej strane profilu tak, aby ho izolácia nepresahovala a ani nebola zapustená.
Zatepľovací systém na báze kamennej minerálnej vlny sa zakladá minimálne 30 cm nad úrovňou terénu.
Špára medzi zakladajúcim profilom a podkladom sa riadne utesní.
Pri nanesení lepidla a pri osadzovaní dosiek sa nesmie lepidlo dostať na bočnú stranu dosiek.
Dosky sa musia lepiť tesne k sebe.
Styky medzi doskami nesmú kopírovať trhliny v podklade alebo styk dvoch rôznorodých konštrukcií.
Dosky nesmú kopírovať rôzne hrúbky konštrukcií.
Diletácie musia byť dodržané, špáry dosiek ich nesmú prekrývať.
Pre kontrolu rovnosti nalepených dosiek sa používa vodováha.
Nivelácia dosky pri lepení na stenu
Medzera medzi izolačnými doskami
Eventuálne vzniknuté medzery (nad 2 mm) sa vyplnia prírezami z tepelného izolačného materiálu.
Do špár medzi jednotlivými izolačnými doskami sa nesmie dostať lepiaca ani armovacia hmota.
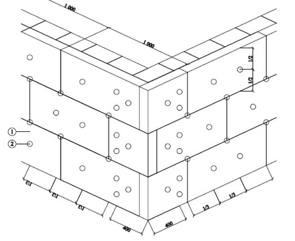
Izolačné dosky sa lepia zásadne na väzbu, a to aj na rohoch objektov.

Medzera medzi doskami izolácie – vzniká tepelný most
Väzba dosiek tepelného izolantu – vonkajšie nárožie
Väzba dosiek tepelného izolantu – vonkajšie nárožie
- Tepelný izolant
- Rozperná kotva – natĺkacia alebo skrutkovacia s kovovým tŕňom
Stavebné otvory (pre okná a dvere)
Obloženie otvorov (okien, dverí) sa vykoná tak, aby kríženie špár dosiek bolo najmenej 10 cm od rohu.
Vodorovné a zvislé špáry nesmú lícovať s ostením, nadpražím ani parapetnou doskou (všetkých výplní otvorov).
V mieste ostenia, nadpražia a parapetnej dosky sa izolácia plošne lepí s presahom.
Izolácie v okolí ostenia, nadpražia a v okolí parapetnej dosky sa k izolačným doskám v ploche pritlačia (v závislosti na ráme okna, dverí a pod.).
Všetky napojenia ETICS na priľahlej konštrukcii sa vykonávajú tak, aby nedošlo k prieniku vody do systému a ku vzniku škodlivých trhlín. K tomu sa používajú tesniace pásky, dilatačné alebo ukončovacie lišty a tesniace tmely.
Väzba dosiek tepelnej izolácie pri okne správne vs. nesprávne prevedenie

- Tepelná izolácia.
- Rozperná kotva – natĺkacia alebo skrutkovacia s kovovým tŕňom.
V prípade nedodržania odporúčaných postupov môže dôjsť ku vzniku trhlín v rohoch okolo okien. Trhliny spôsobia zatečenie vody do systému, čím sa degraduje funkčnosť systému.
4. Kotvenie hmoždiacich skrutiek
Kotvenie sa vykonáva po kontrole rovnosti ETICS.
Kotvenie systému sa vykonáva 1 -3 dni po osadení izolácie a pred prevedením stužiacej (armovacej) vrstvy.
Kotvenie systému sa vykonáva pomocou rozperných kotiev s kovovým tŕňom.
Kotvenie, druh rozperných kotiev, ich počet, poloha voči výstuži a rozmiestnenie v ploche ETICS, určuje projektová dokumentácia.
Nesmie sa prekročiť maximálna doba vystavenia UV žiareniu rozperných kotiev, t.j. doba, počas ktorej nebudú kotvy kryté ďalšími vrstvami systému. Možnú dobu vystavenia rozperných kotiev UV žiareniu stanovuje ich výrobca.
Zásady kotvenia rozperných kotiev
Dĺžka rozpernej kotvy sa všeobecne stanovuje jednoduchým výpočtom – hĺbka kotvenia v nosnej konštrukcii + zostávajúca omietka + lepiaci tmel s izoláciou = dĺžka rozpernej kotvy.
Vrt pre osadenie rozperných kotiev
Vrt pre osadenie rozperných kotiev sa vykonáva kolmo na podklad. Pri ETICS s minerálnou izoláciou sa s vŕtaním začne až po prepichnutí dosky vrtákom.

Ukážka vŕtania otvorov – kolmo na stenu
Priemer vrtáku sa stanovuje podľa druhu použitej rozpernej kotvy definovanej v projektovej dokumentácii.

Ukážka prípravku na montáž zapustených rozperných kotiev
Do vysoko poréznych hmôt a hmôt s dutinami sa otvory vŕtajú bez príklepu. Hĺbka vrtu sa prevedie o 10 mm hlbšie ako je predpísaná kotviaca dĺžka rozpernej kotvy.
Osadenie rozpernej kotvy
Najmenšia vzdialenosť osadenia rozpernej kotvy od rohu sa odporúča 10 cm.
Tanier osadenej rozpernej kotvy nesmie narúšať rovnosť základnej vrstvy.
Pri osádzaní rozperných kotiev sa odporúča použiť gumené kladivo – nesmie dôjsť k poškodeniu tŕňa.
Zle osadená, poškodená alebo zdeformovaná rozperná kotva sa odstráni a nahradí sa novou.
V prípade, ak nie je možné poškodenú alebo zdeformovanú rozperná kotvu odstrániť, upraví sa tak, aby nenarúšala celistvosť a rovnosť povrchu ETICS.
Ukážka vloženia rozpernej kotvy do predvŕtaných otvorov
Ukážka montáže zapustenia rozperných kotiev
Zostávajúci priestor po rozperných kotvách sa vyplní izolačným materiálom – je neprípustné tento otvor vypĺňať tmelom.
Zátka pre zapustenú montáž rozperných kotiev
Vložená zátka z minerálnej vlny eliminuje tepelné mosty od rozperných kotiev
5. Základná výstužná vrstva
Pred začatím armovania sa osadia všetky ukončovacie, dilatačné a tesniace lišty a výstužné prvky.
Najskôr sa armujú nárožia, hrany, ostenia a nadpražia objektu a určené plochy v projektovej dokumentácií. K tomu sa používajú plastové alebo nekorodujúce rohy s už zabudovanou sklovláknitou sieťkou.
Osadenie rohovej lišty
V miestach dilatácie sa používajú špeciálne dilatačné profily s nanesenou sklovláknitou sieťkou. Pri ich napájaní sa musia dodržiavať zásady prekrývania zdola hore v min. dĺžke 20 mm.
V miestach spojov rohových profilov musí byť tkanina riadne preložená min. 10 cm. V oblasti rohov okien a dverí sa vykonajú diagonálne výstuhy s plochou min. 20×30 cm, odporúča sa rozmer 25×50 cm. V styku okenného ostenia a nadpražia sa vykoná vystuženie pásmom armovacej sieťky v ostení (nadpraží) min. 15 cm od rohu na každú stranu.
Pred začatím armovania sa osadia všetky ukončovacie, dilatačné a tesniace lišty a výstužné prvky. Najskôr sa armujú nárožia, hrany, ostenia a nadpražia objektu a určené plochy v projektovej dokumentácií.
K tomu sa používajú plastové alebo nekorodujúce rohy s už zabudovanou sklovláknitou sieťkou.
Armovanie otvorov

V tomto pracovnom kroku sa odporúča osadiť všetky dostupné kotviace prvky, napr. pre hromozvody, odkvapové rúry, osvetlenie, atď.
Zásady armovania otvorov
Pred aplikáciou hlavnej armovacej vrstvy treba povrch izolačnej dosky penetrovať tenkou vrstvou lepidla (nie je potrebné pre SMARTwall produkty). Na izolačné dosky sa ručne nanesie armovacie lepidlo ozubeným hladítkom 10×10 mm.
Do pripraveného lôžka z lepidla sa vtlačí sieťka. Tmel, ktorý vystúpi skrz sieťku sa následne po prípadnom doplnení vyrovná a uhladí.
Armovacia sieťka sa odporúča ukladať smerom od hora dole s min. presahom v spojoch 10 cm.
Presah 10 cm sa odporúča vykonať aj v miestach vystuženia a na rohoch objektu. Základná vrstva sa vykonáva v hrúbke 3-6 mm.
Pokiaľ sa nedosiahne hrúbka 3 mm v jednom pracovnom kroku, odporúča sa vykonať ďalšiu vrstvu v priebehu 12-24 hodín už bez ďalšej výstuhy.
Armovacia sieťka nesmie ležať na izolácii bez lepidla. Armovacia sieťka musí byť uložená bez záhybov a z oboch strán musí byť krytá lepidlom.
Štruktúra armovacej sieťky nesmie byť prekreslená do povrchu armovacieho lepidla.
Sieťka sa ukladá do vonkajšej tretiny stužiacej vrstvy, pokiaľ to celková hrúbka vrstvy dovoľuje.
Minimálne krytie sieťky sa odporúča 1mm, v miestach presahu 0,5 mm.
Pokiaľ sa vykonáva tesnenie lepidlom v úrovni základnej vrstvy, musí sa pre jeho nanášanie vytvoriť špára s hrúbkou potrebnou pre dané lepidlo podľa predpisu výrobcu.
Dekoratívne prvky sa lepia na dokončenú základnú vrstvu a po jej obvode sa utesnia trvalo pružným tmelom podľa PD.
Zvýšenie odolnosti ETICS proti mechanickému poškodeniu možno zabezpečiť dvojitým vystužením v základnej vrstve. Časový rozdiel medzi dvojitým armovaním nesmie presiahnuť 24 hodín.
6. Prevedenie finálnej povrchovej úpravy
Skladba, druh, štruktúra a farebný odtieň finálnej povrchovej úpravy stanoví projektová dokumentácia. Najnižšia požadovaná hranica schopnosti odrážať svetlo ETICS sa stanoví indexom HBW. Nesmú sa používať odtiene, ktorých index je nižší ako 30.
Podklad pod omietkou sa nechá riadne vyschnúť.
Zásady prevedenia finálnej povrchovej úpravy
Pred nanesením omietky a náteru sa zaistí ochrana pred znečistením všetkých priľahlých konštrukcií, osadených prvkov a presahujúcich konštrukcií.
Pred aplikáciou omietky sa vykoná penetrácia podkladu príslušným penetračným prostriedkom určeným v projektovej dokumentácii. Vlastné aplikácie omietky sa vykonávajú podľa príslušného technického listu a návodu na obale produktu.
Odporúča sa používať nerezové náradie.
Omietky sa nanášajú obvykle od hora dolu a následne sa, podľa technického listu, vykoná vyskrutkovanie.
Pri použití farebnej omietky sa odporúča použitie farebnej penetrácie.
Eventuálne náterové hmoty sa nanášajú spravidla valčekom po predchádzajúcom vyschnutí omietky a podľa technických listov výrobcov.
Ucelené plochy sa vykonávajú v jednom pracovnom kroku bez prerušenia.
| Dilatácia | DWG | DXF | JPG | |
| Založenie | DWG | DXF | JPG | |
| Rez zateplovacím systémom | DWG | DXF | JPG | |
| Väzba dosiek tepelného izolantu vonkajšieho ostenia pri okne | DWG | DXF | JPG | |
| Spôsoby kotvenia tepelnej izolácie kotvami | DWG | DXF | JPG | |
| Armovanie otvoru | DWG | DXF | JPG | |
| Prevedenie na zakrivenej fasáde | DWG | DXF | JPG | |
| Pri vetracej mriežke | DWG | DXF | JPG | |
| Detail do hromosvodu | DWG | DXF | JPG | |
| Napojenie na bolkóne | DWG | DXF | JPG | |
| U sokla – nepodpivničená stavba | DWG | DXF | JPG | |
| Založenie stavby | DWG | DXF | JPG | |
| Dilatácia | DWG | DXF | JPG | |
| Sokel – nepodpivničená stavba | DWG | DXF | JPG | |
| Nezateplený sokel | DWG | DXF | JPG | |
| Rohová dilatácia | DWG | DXF | JPG | |
| Roh | DWG | DXF | JPG | |
| Kút | DWG | DXF | JPG | |
| Parapet s ostením | DWG | DXF | JPG | |
| Ostenie | DWG | DXF | JPG | |
| Nadpražie | DWG | DXF | JPG | |
| Detail u vstupných dverí – podpivničená stavba | DWG | DXF | JPG | |
| Ukončenie pri parapete – vodiaca lišta | DWG | DXF | JPG | |
| Nadpražie okna/dverí s vonkajšou roletou – s tepelne izolačným prvkom VARIO | DWG | DXF | JPG | |
| Nadpražie okna/dverí s vonkajšou žalúziou – VARIO-preklad | DWG | DXF | JPG | |
| Nadpražie okna/dverí s vonkajšou žalúziou – VARIO-preklad R | DWG | DXF | JPG | |
| Nadpražie okna/dverí s pridanou tepelnou izoláciou – XPS 100 | DWG | DXF | JPG | |
| Okenný parapet s pridaným dištančním profilom | DWG | DXF | JPG | |
| Ostenie so skráteným murovacím prvkom – riešenie pre pasívne stavby | DWG | DXF | JPG | |
| Ukončenie u atiky | DWG | DXF | JPG | |
| Ukončenie u šikmej strechy 1 | DWG | DXF | JPG | |
| Ukončenie u šikmej strechy 2 | DWG | DXF | JPG | |
| Ukončenie šikmej strechy pri zateplenej obvodovej stene | DWG | DXF | JPG |
| Skladba konštrukcie dvojplášťového muriva | DWG | DXF | JPG | |
| Založenie nepodpivničeného múriva | DWG | DXF | JPG | |
| Založenie zatepleného suterénu | DWG | DXF | JPG | |
| Roh / kút | DWG | DXF | JPG | |
| Parapet | DWG | DXF | JPG | |
| Ostenie | DWG | DXF | JPG | |
| Nadpražie | DWG | DXF | JPG | |
| Nadpražie – nosná roletová schránka | DWG | DXF | JPG | |
| Ukončenie u plochej strechy | DWG | DXF | JPG | |
| Ukončenie u šikmej strechy | DWG | DXF | JPG |
Radi sa s Vami podelíme o naše skúsenosti a odporučíme Vám to najlepšie riešenie.
Technické súbory na stiahnutie:
- KI Katalog a cennik 1. 1. 2025
- KI_FKDS_letak
- Fasady PE
- certifikát
- Knauf_drevostavby_SK_0
- KI_ECOSE_SK_version



















